
THE PROBLEM :
A government school in Mogappair East, Chennai is in a very dilapidated and poor state. This school caters to about 350 students from Grades 6 to 10 who come from nearby areas. The school is a Tamil and English medium school.
The school classrooms, buildings, infrastructure, corridors, steps, etc., are in a state of neglect for a lack of funds. For children, it’s a depressing environment that is unsafe, unhealthy, and not the best place to be learning.
The environment has become unsafe, unhealthy, and deeply uninspiring for students, negatively affecting their attendance, well-being, and academic performance.

The Principal, Mr Vijay Kumar, and the teaching staff are very dedicated teachers, loved by the students, and are most grateful for this crowdfunding campaign for their school.
Would you, as a parent, send a child to a school that looks like this (SEE IMAGES BELOW)

THE SOLUTION :
To address the problem, the Madras Coastal Round Table #162 is focusing on transforming the Government school, located in Mogappair West, Chennai, by renovating the crumbling classrooms and plans to construct 8 new classrooms. The aim is to transform the school building and infrastructure, which are in a very vulnerable state, into a secure, attractive, and happy learning place.

The collage above showcases a few schools that have been transformed into modern, safe schools by the Madras Coastal Round Table #162.
This project will ensure a safe and productive school life for the students and also help them to reach their full potential and become ” change-makers” in their community. It will be a school where students can learn and be happy while learning. The Madras Coastal Round Table has taken this initiative, as taken up by many Round Table India groups across the country, which has transformed thousands of schools in India.
The cost of doing this is estimated at INR 1.12Cr (see details below), which will impact 350+ children currently.


COST SHEET AND PROPOSED PLAN:
Below is the estimate of the project's overall cost of transforming this school in Mogappair West.


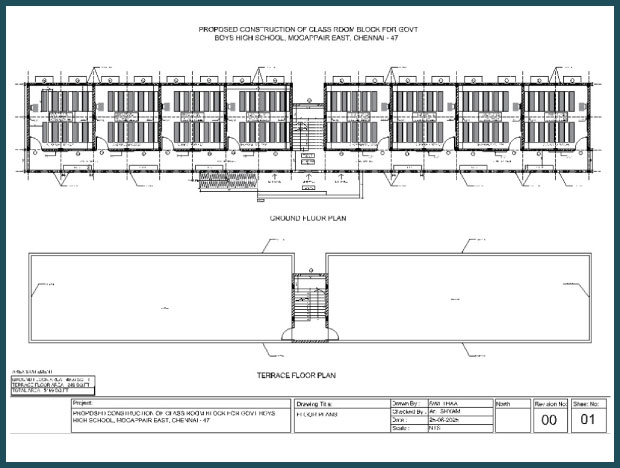
Pic: Proposed plan for the 8 new classrooms for the Government Boys High School, Mogappair East, Chennai.
ABOUT ME :

My name is Maanya Kothari. I am 16-years-old and a Grade 11 student at Chennai Public School, Anna Nagar.
I am running this crowdfunding campaign to transform a Govt Boys High School located at Mogappair East in Chennai and turn it into a "SAFE and MODERN SCHOOL".
I was very surprised and shocked to see the images of the school building, classrooms, common areas and wondered how children are able to study in such an environment. Making the school and classrooms bright, cheerful, and safe and providing them with a classroom to learn is a very basic requirement.
Through this campaign, me and my other friends aim to transform this school so that 350 plus children who come here learn in a better environment and look forward to coming to the school. This will also help them introduce classes for Grades 11 and 12.
A safer and better classroom environment will help the students reach their potential and leverage their education to build a career and life for themselves.
LOCATION OF THE SCHOOL IN CHENNAI :

ABOUT THE MADRAS COASTAL ROUND TABLE - 162 :

For 22 years, MCRT 162 (an associate member of Round Table India) has transformed lives through education and community development.
They have successfully built more than 38 classrooms across Tamil Nadu, including:
- Hutton Night School – 2 classrooms
- Padur Government School – 5 classrooms
- Thanthai Periyar Government School, Puzhuthivakkam – 12 classrooms
- Ponneri SGRVV School – 6 classrooms
- Porur Government School – 3 classrooms
- and several others
Their flagship impact event, Happy Talkies 2.0, brought joy to 2,500 children with special needs through a private movie screening at Satyam Cinemas. Believing that every child deserves a safe, inspiring place to learn, they are committed to turning this vision into reality. Together, we can rebuild hope and lay a strong foundation for future leaders.
TAX BENEFITS :
Funding for this campaign is eligible for tax breaks as the Madras Coastal Round Table - 162 is a registered trust, and you can avail of benefits under Section 80G of the IT Act.

FEEDBACK/CAMPAIGN UPDATES FOR YOU:
To ensure that there is complete transparency, I shall get a report from Madras Coastal Round Table #162 (this takes between 2 to 4 months, usually after the funds are raised and transferred to them) telling me how the funds are being used as a report. The details of this report will then be posted by Madras Coastal Round Table #162 on the UPDATES section of my campaign. As soon as they post an update, the platform will send an EMAIL alert to all the funders - i.e., to you. Click on the link in that EMAIL ALERT, and you come back to this campaign page and can read how the funds are being used in the UPDATES section of the campaign. That's transparent, right!!
FAQs
Will we get to know the details of who benefited?
Yes. After the money has been collected, it will be transferred by Fueladream to the Madras Coastal Round Table #162. It will take 2 to 4 months after that to get details of the fund use. Once I get this information from them, I shall upload this to the UPDATES section of this campaign. You will then get an alert and read details about how the funds were used
When do I get the receipts?
It takes up to 2 weeks after the campaign is closed for the monies to be transferred to the Madras Coastal Round Table #162. The receipts will start getting processed about 4 to 6 weeks AFTER the campaign is closed and will be sent to you directly.
How can we fund this campaign with a Cheque?
Fueladream Online Ventures Pvt Ltd account details are as below
BANK NAME: HDFC Bank Limited.
BRANCH: Koramangala( Main Branch). City: Bengaluru - 560095.
ACCOUNT NUMBER: 50200013106778
IFSC CODE: HDFC0000053
Please draw a cheque in favour of "Fueladream Online Ventures Pvt Ltd", and deposit the cheque into the Fueladream Online Ventures Pvt Ltd HDFC Bank account (any branch across INDIA). After you deposit the cheque, please send an email to prasad@fueladream.com AND getintouch@fueladream.com with the following funder information.
1) Name of Funder:
2) Full address with Pin code:
3) Telephone/Mobile no and Email ID:
4) PAN of funder:
5) Cheque number:
6) Amount funded:
7) Whose campaign are you funding? (Name of the person OR campaign number/ID):
After the funds are received and the above details are verified, the fund amount will be transferred to the respective campaign. This can take from 1-3 working days.
How does crowdfunding work?
Crowdfunding in India is a relatively new concept & is growing very quickly.
It’s a concept that allows a large number of funders (like you) to fund an idea or a cause, or an event by giving small amounts of money online. Fueladream.com is a crowdfunding platform in India that allows for such pooling of funds. You can fund innovations and ideas on FuelADream and be the first to get these products or make them come true. You can also do a good turn by funding charities and causes through crowdfunding. When you fund a charity it’s more like a donatio,n and you get small innovative rewards like a shout-out on an FB page or a thank you email from the beneficiaries.