
WE NEED YOUR HELP TO GIVE THIS SCHOOL A STUDENT-FRIENDLY CENTRE OF LEARNING
The infrastructure of a school plays a vital role in the overall wellbeing of its students. The inadequacy of classrooms at the Government High School located at Kelambakkam has led to the children being taught under trees or crammed into a single room. According to a study; a poor learning environment is detrimental to students which leads to increased absenteeism and sickness, reduced morale, reduced productivity and low test scores.
The mission is to provide the 100 students at Government School Kelambakkam with a smart classroom. A well-equipped classroom can define the structure and practices of classroom teaching that directs attention, organizes information, encourages activity and concentration. The cost of this undertaking is 17 Lakhs, and the positive waves of this smart classroom will ripple through the community of Kelambakkam for years to come
My campaign aims to raise INR 8000 or more. If more is raised then we will be able to help the school with other infrastructure needs.

OBJECTIVES
1. To render quality education through the creation of a student-friendly learning space which will directly have a positive impact on the academic achievements of students.
2. To enrol more students in Government School and reduce the dropout rate.
3. To positively affect teachers in classrooms that are comfortable with a pleasing atmosphere conducive to teaching and learning.
COST SHEET

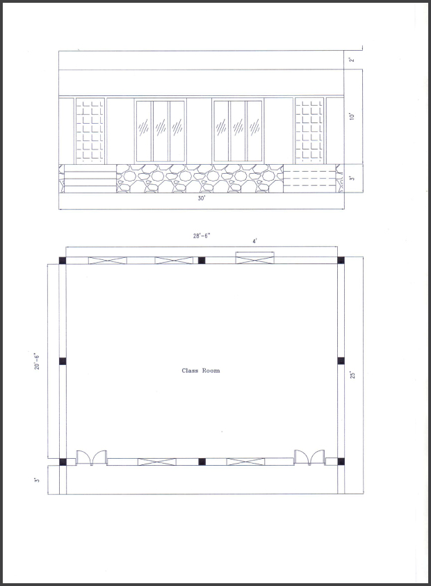
CONSTRUCTION PLAN

ABOUT ME & THIS CAMPAIGN:

My name is FEDRICA EDIN BROW. I am a student at HCAS.
I am doing this campaign to transform the lives of children from underprivileged homes who go to a GOVT SCHOOL that is located near my college. This school is located at Kelambakkam.
The main problem affecting the children of the Govt. Higher Secondary School, Kelambakkam is the lack of classrooms. This lack of infrastructure means students study under trees or are crammed into a class. This becomes a serious issue during monsoon & the hot summer months. Absenteeism and lack of interest in studies are the end result.
The classroom that we want to build is a smart multi-purpose classroom. It has a projection system, good quality chairs and desks, smartboards, computers, and even air-conditioning for the hot summer months.
THE SCHOOL:

ABOUT DR. K.C.G. VERGHESE CHARITABLE FOUNDATION
Dr K.C.G Verghese Charitable Foundation based in Chennai was established in memory of the late educationalist and philanthropist Dr K.C.G Verghese. The three guiding principles - CARE, CONCERN, COMPASSION - symbolize Dr K.C.G Verghese and this trust has been established by the family of Dr K.C.G Verghese and Hindustan Group of institutions to assist the needy and the deserving.
Dr K.C.G. Verghese was a patriot and a humanist whose ideals and visions shaped an excellent educational conglomerate. The panoply of community development endeavour undertaken by Dr K.C.G. Verghese - embracing everything from health and education to art, sport and more - has touched and changed many lives. Hindustan Group of Institutions was established in the year 1966 and is the handy work of our Founder Chairman Late Dr K.C.G. Verghese.
LOCATION MAP

TAX BENEFITS:
Funding for this campaign is eligible for tax breaks as the K.C.G. Verghese is a registered trust & you can avail of benefits under section 80G of the IT act.
FAQs
Will we get to know the details of how the money was spent?
Yes. After the money has been collected it will be transferred by Fueladream to KCG VARGHESE CHARITABLE FOUNDATION. It will take upto 6 months after that to get details of fund use. Once we get this information from them, we shall upload this to the UPDATES section of this campaign. You will then get an alert & can read details about the impact we have made and how the money has been spent.
When do I get the receipts?
It takes up to 2 weeks after the campaign is closed for the monies to be transferred to NGO. The receipts will start getting processed about 4 to 6 weeks AFTER the campaign is closed and will be sent to you directly.
How does crowdfunding work?
Crowdfunding in India is a relatively new concept & is growing very quickly.
It’s a concept that allows a large number of funders (like you) to fund an idea or a cause or event by giving small amounts of money online. Fueladream.com is a crowdfunding platform in India that allows for such pooling of funds. You can fund innovations & ideas on FuelADream and be the first to get these products or make them come true. You can also do a good turn by funding charities and causes through crowdfunding. When you fund a charity it’s more like a donation & you get small innovative rewards like a shout-out on an FB page or a thank you email from the beneficiaries.